| 用人单位名称 | 高碑店市新城新固加油站 | 联系人 | 孙冲 | ||
| 项目名称 | 高碑店市新城新固加油站扩建改造项目 | ||||
| 用人单位地址 | 河北省-保定市-高碑店市-新城镇郭庄村西 | ||||
| 用人单位行业类别 | 其他 | ||||
| 预评价报告编号 | BDKH-PJ-2024-Y009 | 报告出版日期 | 2024-06-16 | ||
| 项目组人员 | 张伟、刘琳辉、王志玲 | ||||
| 现场调查人员 | 张伟、刘琳辉 | 用人单位陪同人 | 孙冲 | 时间 | 2024-06-04 |
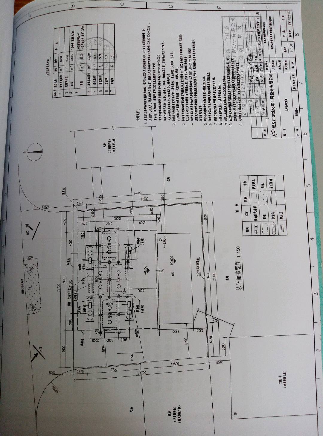
| 现场调查照片 |
|
||||
| 用人单位名称 | 高碑店市新城新固加油站 | 联系人 | 孙冲 | ||
| 项目名称 | 高碑店市新城新固加油站扩建改造项目 | ||||
| 用人单位地址 | 河北省-保定市-高碑店市-新城镇郭庄村西 | ||||
| 用人单位行业类别 | 其他 | ||||
| 预评价报告编号 | BDKH-PJ-2024-Y009 | 报告出版日期 | 2024-06-16 | ||
| 项目组人员 | 张伟、刘琳辉、王志玲 | ||||
| 现场调查人员 | 张伟、刘琳辉 | 用人单位陪同人 | 孙冲 | 时间 | 2024-06-04 |
| 现场调查照片 |
|
||||
电话:0312-6783309
邮编:071000
邮箱:bdkeh@sina.com
网址:http://www.gzmeihao2.com
地址:保定市北二环5699号大学科技园1-B-502

扫描进入手机站